Rehabilitation and Restoration
Restoration and rehabilitation aim to preserve the architectural character of old buildings while strengthening their structural integrity and updating them to meet modern usage requirements.

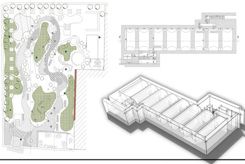
Azia Old School
Damascus, Syria

Maazant Al-Shahem – 351
Damascus, Syria

Saruja – 111
Damascus, Syria

Khan Sulaiman Basha – Damascus Old City
Damascus, Syria

Abdulraouf mashraqa

Kuaifati – Sham Sharif Hotel 216-217
Damascus, Syria

Jaika (Community center)
Damascus, Syria

Al-Fares Hotel
Damascus, Syria

Al Keshleh Park– Damascus Old City
Damascus, Syria

Jasmin Palace Hotel 250-251
Damascus, Syria

Beit Jiddi Restaurant
Damascus, Syria

Al Beit Al Shami Restaurant
Damascus, Syria

Al Maheini House
Damascus, Syria
